Plot 136: Banton - 3 Bedroom Home

Welcome to this stunning Semi Detached at Weaver's Brae, Kirkintilloch, nestled in the charming locale of Fauldhead UK. This 3-bedroom, 2-bathroom home offers a perfect blend of modern living and timeless elegance.

Experience comfort and style with our high-quality specifications. These homes are thoughtfully designed with energy efficiency in mind, featuring advanced insulation, double-glazed windows, and energy-efficient appliances to help reduce your carbon footprint and utility bills.

Situated in the heart of East Dunbartonshire, Weaver's Brae, Kirkintilloch offers convenient access to local amenities, top-rated schools, and excellent transport links, providing you with all the benefits of a new home in a prime location.


HBF 5 Star Rated Builder New Consumer Code NHBC NHQC

Weaver's Brae, Kirkintilloch

Plot 136 | £357,995


  • 3 Bedrooms

  • 2 Bathrooms

  • 1230 sq ft

  • Banton

Tenure: Heritable

EPC Rating: B

Property Type: Semi Detached


Make an enquiry
Enlarged view

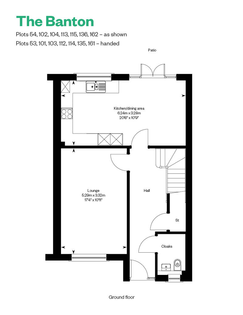
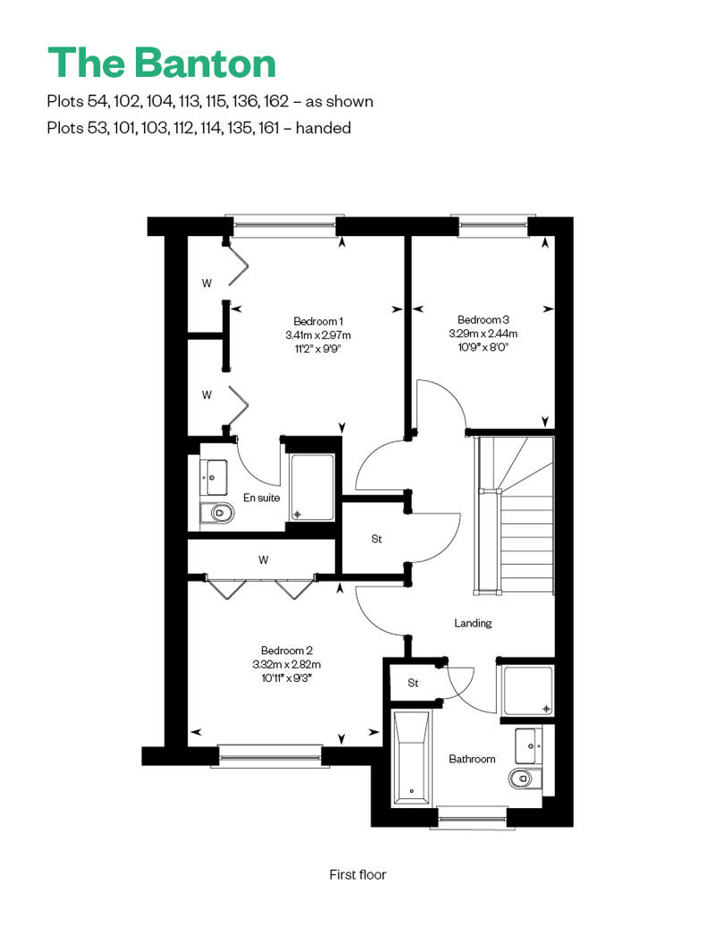
The Banton

Discover your dream home...

Overall size - 1230 sq ft

The Banton is a charming and comfortable three bed semi-detached home. Downstairs features a spacious open plan kitchen and dining area, complete with integrated appliances and French doors that lead to your private patio area. A private lounge at the front of the home provides the perfect space for entertaining friends and family. An impressive master bedroom complete with built in wardrobes and en suite facilities can be found upstairs, along with another two bedrooms and family bathroom. 

Take a look at the Banton homestyle...
Images show a previous Cala showhome where finishes, specification and choices may differ, speak to our team for details.
Discover The Banton...

Tenure

Heritable

Service Charge

N/A - speak to our team for details on any estate related service charges

Council Tax

TBC - speak to our team for estimated council tax band

Management fee

TBC

Arrow up

Thank you.

A Cala sales representative will be in touch soon to discuss your enquiry.