Plot 19: Foxglove - 3 Bedroom Home

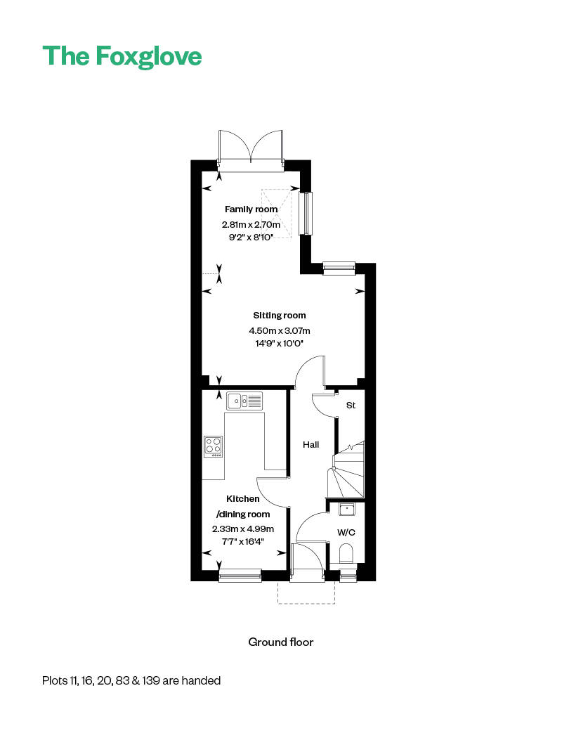
A stylish three-bedroom home spread across three floors, designed for modern living. The open plan sitting and family room opens to the garden via French doors, ideal for relaxing or entertaining. A separate kitchen/dining room offers a practical space for everyday meals and hosting.

Upstairs, the spacious main bedroom features an ensuite and built-in wardrobe. Bedroom three is served by a family bathroom. The top floor includes bedroom two and a study with its own ensuite, perfect for guests, or working from home.


HBF 5 Star Rated Builder New Consumer Code NHBC NHQC

Samuel Gardens, Arlesey

Plot 19 | £500,000


  • 3 Bedrooms

  • 3 Bathrooms

  • 1141 sq ft

  • Foxglove

Tenure: Freehold

Service Charge: £234.73 P/A

Council Tax: Band Not Available

EPC Rating: B

Property Type: Semi Detached


Make an enquiry
Enlarged view
Images shown are taken from various Cala showhomes or have been generated by computer (for indicative purposes only and are not to be presumed to be entirely accurate.) Showhome images feature fittings, décor, flooring, soft furnishings and landscaping that are not included as standard in a Cala home. Images are used to suggest possible finishes that can be achieved in your home at an additional cost. Please consult a Sales Representative for further details. Some images have been enhanced.
Arrow up

Thank you.

A Cala sales representative will be in touch soon to discuss your enquiry.