Plot 58: Orpine - Custom Build 2 - 3 Bedroom Home

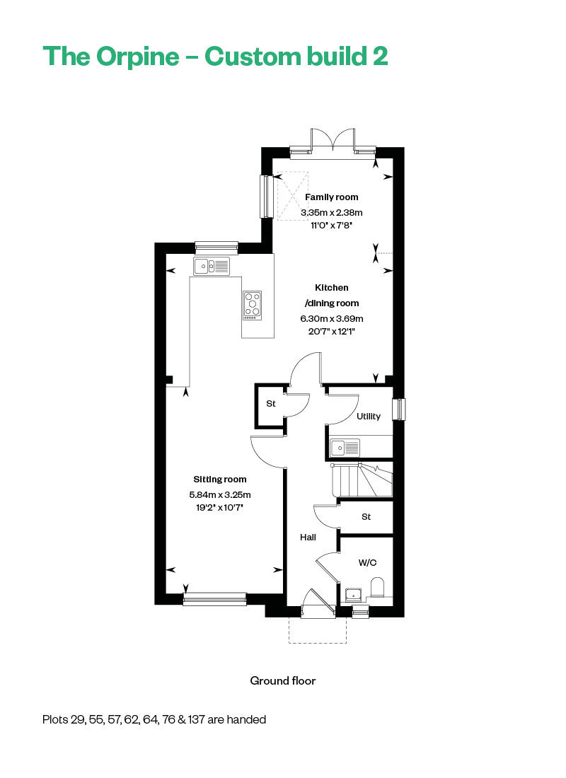
Select from three different layouts for your Orpine custom build home. Custom Build Orpine option 2 is a thoughtfully designed 3-bedroom semi-detached home with a garage*, offering a flexible layout ideal for modern living. At its heart is a spacious open-plan kitchen, dining, and family room that flows into a generous sitting room, creating a sociable space for everyday life and entertaining.

Practical touches include a utility room, downstairs WC, and plenty of built-in storage to help keep daily life organised.

Upstairs, the main bedroom is a luxurious retreat with a dressing room, his and hers sinks, and a private ensuite. Bedroom two features a fitted wardrobe, while the remaining rooms are served by a stylish family bathroom, making this home a smart choice for growing families or those seeking comfort and functionality.

For alternative layouts, explore The Orpine custom build 1 and 3 to find your perfect home, your way.


HBF 5 Star Rated Builder New Consumer Code NHBC NHQC

Samuel Gardens, Arlesey

Plot 58 | £615,000


  • 3 Bedrooms

  • 3 Bathrooms

  • 1400 sq ft

  • Orpine - Custom Build 2

Tenure: Freehold

Service Charge: £234.74 P/A

Council Tax: Band Not Available

EPC Rating: B

Property Type: Semi Detached


Make an enquiry
Enlarged view
Images shown are taken from various Cala showhomes or have been generated by computer (for indicative purposes only and are not to be presumed to be entirely accurate.) Showhome images feature fittings, décor, flooring, soft furnishings and landscaping that are not included as standard in a Cala home. Images are used to suggest possible finishes that can be achieved in your home at an additional cost. Please consult a Sales Representative for further details. Some images have been enhanced.
Arrow up

Thank you.

A Cala sales representative will be in touch soon to discuss your enquiry.