Plot 3: Ripton with studio - 4 Bedroom Home

3 bedroom semi-detached and terraced home with studio and generous garage

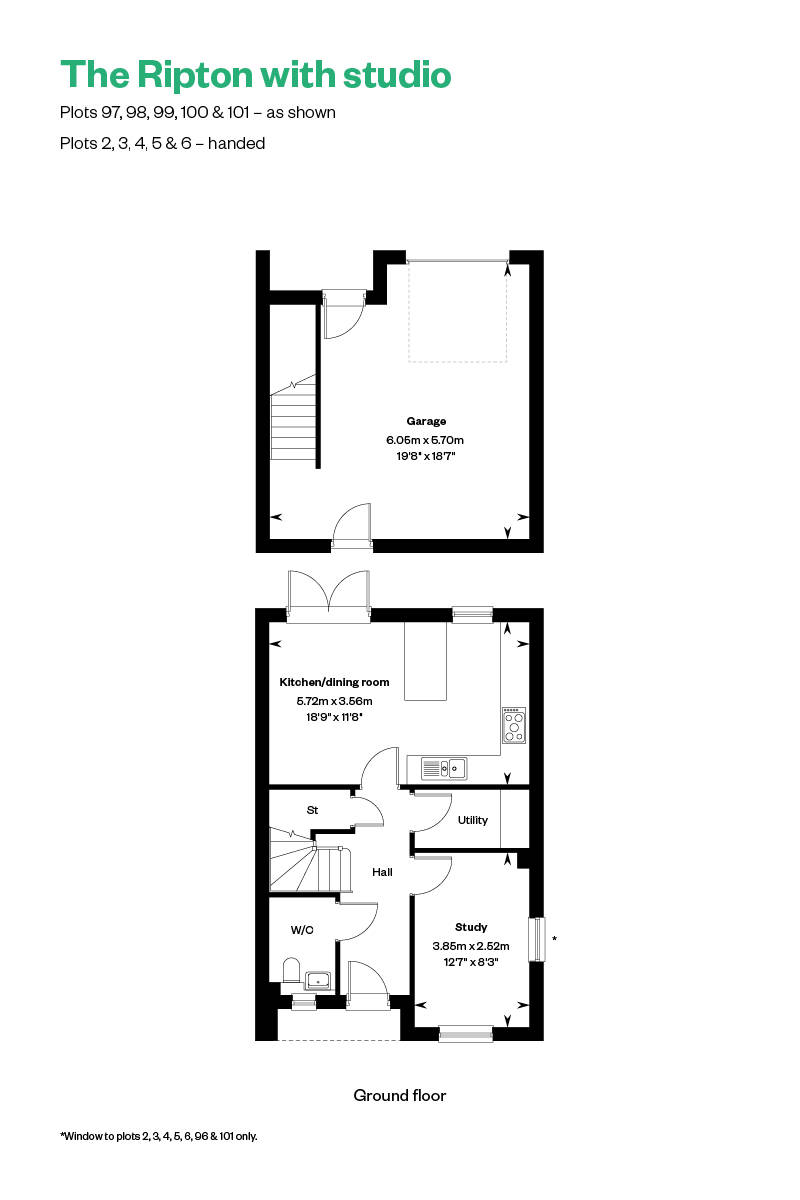
This is a family home with great features and flexible living spaces over three floors. Room to grow, with three bedrooms and the added bonus of a studio room complete with en-suite and its own outdoor terrace over the garage – giving you and your family even more freedom to live life the way you want to.

On the ground floor, the sizeable kitchen/ dining room with breakfast bar opens out into the garden through a set of French doors for safe play or entertaining. There’s a separate study which could double as a cinema, playroom or den, and a handy utility room for added convenience.

On the first floor the spacious sitting room is flooded with natural light, along with bedroom two, located on the opposite side of the landing and featuring a built-in wardrobe. There is also a shared family bathroom and storage cupboard to be found off the landing.
Up on the second floor, spacious bedroom one has an ensuite and built-in wardrobes, while Bedroom 3, located opposite, is also well-proportioned.


HBF 5 Star Rated Builder New Consumer Code NHBC NHQC

Netherhall Gardens, Cambridge

Plot 3 | £900,000


  • 4 Bedrooms

  • 3 Bathrooms

  • 1845 sq ft

  • Ripton with studio

Tenure: Freehold

Service Charge: £261.00 P/A

Council Tax: Band Not Available

EPC Rating: B

Property Type: Semi Detached


Make an enquiry

Save £25,000 with our new and reduced price plus Stamp Duty contribution*

Was £925,000. Now £900,000

This home is available with Stamp Duty contribution*

*Stamp Duty paid available on plot 3 at Netherhall Gardens, for reservations before the 31st May 2026. If the home purchased is not your only home, you will have to cover any additional Stamp Duty incurred for second homes. This package is available at full asking price of £900,000 and not in conjunction with any other service or incentive unless agreed by us at time of reservation.

Enlarged view

Take a virtual tour of The Ripton

These virtual tours may be taken from previous Cala showhomes and may be different from the same housetype at Netherhall Gardens. Please speak with a Sales Consultant to find out more about the specification and layout.

Images shown are taken from various Cala showhomes or have been generated by computer (for indicative purposes only and are not to be presumed to be entirely accurate.) Showhome images feature fittings, décor, flooring, soft furnishings and landscaping that are not included as standard in a Cala home. Images are used to suggest possible finishes that can be achieved in your home at an additional cost. Please consult a Sales Representative for further details. Some images have been enhanced.
Arrow up

Thank you.

A Cala sales representative will be in touch soon to discuss your enquiry.