Plot 117: Oundle - Detached - 4 Bedroom Home

Offering flexible living on three levels, The Oundle accommodates everyone in contemporary comfort. The kitchen/dining room and family room share an open plan design, featuring French doors to the garden, along with a separate utility room and WC.

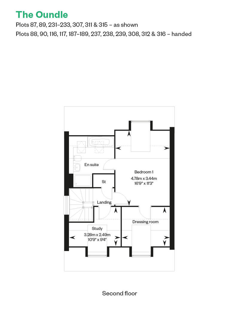
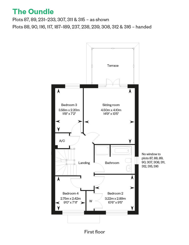
Upstairs, the generous sitting room extends through French doors onto an elegant terrace, joined by a large four-piece bathroom and three bedrooms to choose from. Or you can retreat to the impressive en suite bedroom one with dressing area and private study on the top floor.

Are you looking for Part Exchange*? or Assisted Move*? Talk to our Sales Consultants today.

*Terms and conditions apply.


HBF 5 Star Rated Builder New Consumer Code NHBC NHQC

Cala at Hampton Lakes

Plot 117 | £489,950


  • 4 Bedrooms

  • 2 Bathrooms

  • 1769 sq ft

  • Oundle - Detached

Tenure: Freehold

Service Charge: £480.31 P/A

Council Tax: Band E

EPC Rating: B

Property Type: Detached


Make an enquiry

Available with £14,498 Stamp Duty contribution*

This home is available with £14,498 Stamp Duty Contribution*

*Stamp Duty paid available on plot 117 at Hampton Lakes, for legal completions before the 1st June 2026. If the home purchased is not your only home, you will have to cover any additional Stamp Duty incurred for second homes. This package is available at full asking price of £489,960 and not in conjunction with any other service or incentive unless agreed by us at time of reservation. 

Enlarged view

The Oundle Showhome open daily

Come and view our Oundle showhome and discover the height of contemporary living. Open daily from 10.30am-5pm.

Alternatively, take a virtual tour from the comfort of your own home.

 

Images shown are taken from various Cala showhomes or have been generated by computer (for indicative purposes only and are not to be presumed to be entirely accurate.) Showhome images feature fittings, décor, flooring, soft furnishings and landscaping that are not included as standard in a Cala home. Images are used to suggest possible finishes that can be achieved in your home at an additional cost. Please consult a Sales Representative for further details. Some images have been enhanced.
Discover how a three-storey home could offer you flexible, family living
Arrow up

Thank you.

A Cala sales representative will be in touch soon to discuss your enquiry.