Plot 3: Crichton - 5 Bedroom Home

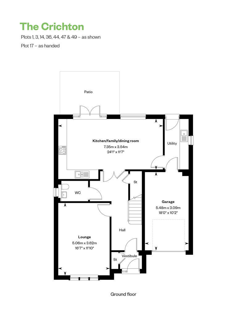
Four double bedrooms, two with en suite, plus a study/fifth bedroom make The Crichton a family home with room to grow. The four larger bedrooms feature fitted wardrobes, and all rooms have access to a luxurious family bathroom. Downstairs, the spacious, L-shaped entrance hall gives access to the formal lounge and a large open plan kitchen and family/dining room. A downstairs cloakroom, ample storage, utility room and integral garage cater for all practicalities.


HBF 5 Star Rated Builder New Consumer Code NHBC NHQC

Raemoir Park, Banchory

Plot 3 | £469,999


  • 5 Bedrooms

  • 3 Bathrooms

  • 1810 sq ft

  • Crichton

Tenure: Freehold

Council Tax: Band G

EPC Rating: B

Property Type: Detached


Make an enquiry

Let's talk incentives tailored just for you

Available for £469,000, this home is ready for you and is one of our final homes for a 2025 move. With Part Exchange and an LBTT contribution* on this plot, let's talk about how we can help make your move simple and stress-free.

Enlarged view

Step inside the Crichton...

Imagine what you could do with this home...
Computer generated images shown feature fittings, décor, flooring and soft furnishings which are not fitted as standard in a Cala Home. CGI’s are used to suggest possible finishes that can be achieved in your home at an additional cost. Please consult a Cala representative for further details.
Arrow up

Thank you.

A Cala sales representative will be in touch soon to discuss your enquiry.