Plot 120: Arisaig - 3 Bedroom Home

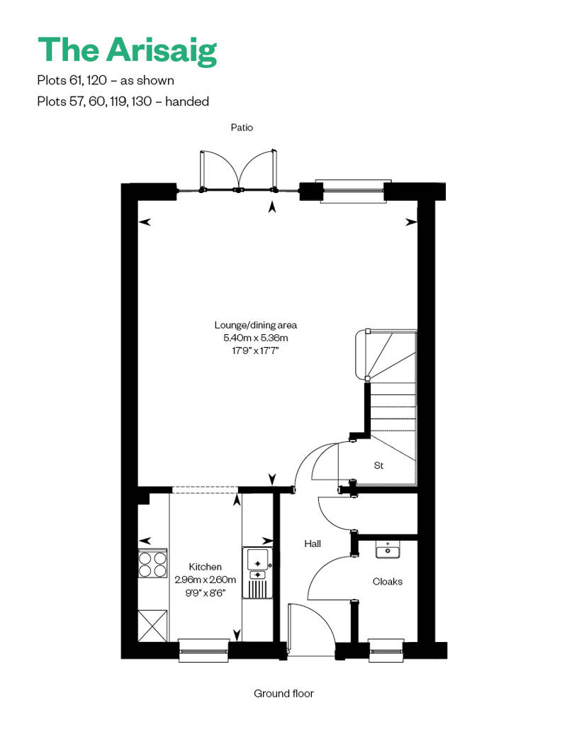
The Arisaig is a contemporary 3 bedroom family home. The ground floor enjoys a spacious open plan living and dining area, complete with French doors to your garden.

The separate kitchen offers the perfect space for preparation and washing up, while your family and friends enjoy the lounge and garden.

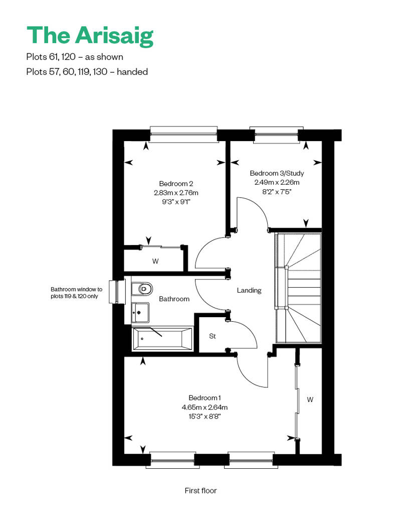
Upstairs, all 3 bedrooms offer comfort and style, including a beautiful master bedroom with double aspect windows, whilst a designer family bathroom and additional storage completes the home.

See what a recent Arisaig purchaser had to say:

"The home is high quality but the service has been high quality as well. There isn't a moment where we have felt we are on our own, there is a vigorous aftersales. They are really attentive and professional, even the members of the teams and the contractors, everyone is respectful and hard working. Every aspect of it has been really 5 stars."


HBF 5 Star Rated Builder New Consumer Code NHBC NHQC

Weaver's Brae, Kirkintilloch

Plot 120 | £311,000


  • 3 Bedrooms

  • 1 Bathroom

  • 980 sq ft

  • Arisaig

Tenure: Heritable

Service Charge: £225.00 P/A

Council Tax: Band D

EPC Rating: B

Property Type: Terrace


Make an enquiry

Settle in right away...

This home is available with your choice of flooring and carpets included throughout.

Enlarged view

The Arisaig

Tour a previous showhome

Take a look at the Arisaig homestyle...
Images show a previous Cala showhome where finishes, specification and choices may differ, speak to our team for details.
Arrow up

Thank you.

A Cala sales representative will be in touch soon to discuss your enquiry.