Plot 56: Garvie - 5 Bedroom Home

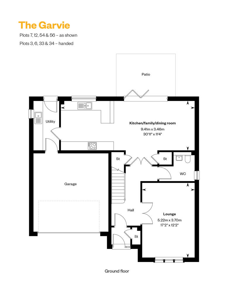
Comprising five spacious bedrooms, two with an en suite, The Garvie has been designed for flexible family living.

From the spacious hallway, a separate formal lounge and the open plan studio-designed kitchen/family/dining area are both accessed via double doors.

Upstairs are four elegant and generous bedrooms, two of which are en suite, are completed by a flexible fifth bedroom (which could also be used as a private study for home working, playroom, nursery or teenage snug).

The Garvie is completed by a four-piece family bathroom, downstairs WC, integral garage and private driveway, plentiful storage and handy utility room.

This very home is available to view furnished! Open daily - book your appointment today.


HBF 5 Star Rated Builder New Consumer Code NHBC NHQC

Craighall Village - The Monktons, Millerhill

Plot 56 | £624,995


  • 5 Bedrooms

  • 3 Bathrooms

  • 2088 sq ft

  • Garvie

Tenure: Freehold

Service Charge: £266.81 P/A

Council Tax: Band G

EPC Rating: B

Property Type: Detached


Make an enquiry

Miss this, Miss out...

Only two 5 bedroom homes remain at Craighall Village until 2027.

Act now to avoid disappointment and secure your dream home today.

Help to move, built around you

Make our featured home yours

Available to view daily, contact our sales team to arrange your visit of this furnished 5 bedroom detached home available with: 

★ LBTT paid* (which could equate to a saving of £35,849)

Plus

★ Flooring, turf, lights & blinds

If you have a home to sell, why not ask us about our Part Exchange service?

*for reservation by 30th January 2026. Terms & conditions apply.

Welcome home to The Garvie

Designed for flexible family living, Plot 56, The Garvie has everything you need and a little bit more:

 

★ Boasting 2,088 sq. ft. with 5 generous bedrooms 

★ Seprate lounge to the front

★ Spacious rear garden

★ Impressive high ceilings to ground floor (2.7m)

★ Included as standard: 1.8m fence, integrated Siemens appliances, fitted wardrobes, EV charging and much more

 

This very home is available to view furnished! Open daily - book your appointment today.

Enlarged view
The Garvie - Showhome photography
Photography may have been enhanced in post-production and may include upgrades at additional cost. Computer Generated Images may show features fittings, décor, flooring and soft furnishings which are not fitted as standard in a Cala home. CGIs are used to suggest possible finishes that can be achieved in your home at an additional cost. Please consult a Cala representative for further details. Predictive Energy Assessment and Energy Performance Certificate calculations in Scotland are changing. The specification and efficiency of our homes is not changing, but the EPC rating may, which could affect lending eligibility, particularly green mortgages. Visit www.cala.co.uk/epcscotland for more information or speak to a Cala sales representative.

The Garvie Showhome - Virtual Tour

Please note some design, specification items and finishes may differ.

Arrow up

Thank you.

A Cala sales representative will be in touch soon to discuss your enquiry.