Plot 6: The Elmer - 3 Bedroom Home

Ready to move into and available with FULL Stamp Duty paid*.

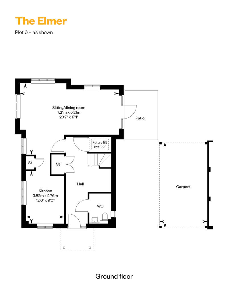
The sitting/dining room of The Elmer allows plenty of space to move around. Can you imagine how you might change the layout as your family’s needs dictate? In warmer months, open the patio door to enjoy life al fresco on your private patio.

Move towards the kitchen area where you can prepare family meals to perfect your culinary skills.

Have a look at the generous hallway, which includes essential storage space and a WC.

On the first floor you’ll find three well-sized bedrooms and a stylish family bathroom. Have fun choosing who sleeps where.

Plot 6 is viewable by appointment only, call to book your appointment today.

*Full Stamp Duty Paid on Plot 6 based on full asking price reservation and cannot be used in conjunction with any other offer. Terms and Conditions apply, for full details visit www.cala.co.uk/terms.

**Images shown are taken from various Cala showhomes or have been generated by computer (for indicative purposes only and are not to be presumed to be entirely accurate). Please consult a Sales Representative for further details.


HBF 5 Star Rated Builder New Consumer Code NHBC NHQC

Langley Court

Plot 6 | £750,000


  • 3 Bedrooms

  • 1 Bathroom

  • 1330 sq ft

  • The Elmer

Tenure: Freehold

Service Charge: £235.74 P/A

Council Tax: Band Not Available

EPC Rating: B

Property Type: Detached


Make an enquiry
Enlarged view
Images shown are taken from various Cala showhomes or have been generated by computer (for indicative purposes only and are not to be presumed to be entirely accurate.) Showhome images feature fittings, décor, flooring, soft furnishings and landscaping that are not included as standard in a Cala home. Images are used to suggest possible finishes that can be achieved in your home at an additional cost. Please consult a Sales Representative for further details. Some images have been enhanced.
Arrow up

Thank you.

A Cala sales representative will be in touch soon to discuss your enquiry.