Plot 28: Wisteria – Canford - 5 Bedroom Home

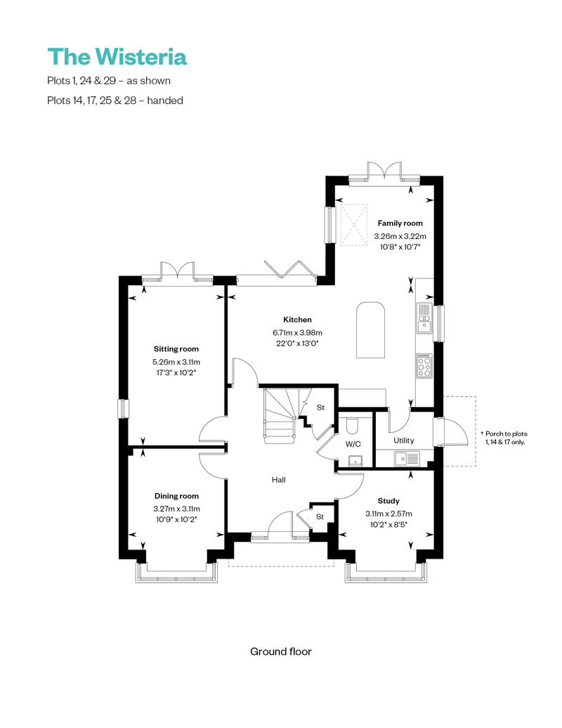
The 5 bedroom Wisteria’s beautifully symmetrical exterior - with its elegant, matching roof gables, chimney with decorative brickwork and fetching, arched windows - showcases the Lady Wimborne style, making this a highly desirable family home. At the front are the separate dining room and a private study, with bay windows in both bringing in plenty of natural light. The generous, dual aspect sitting room brings the outside in, courtesy of a set of French doors opening out to the garden at the end. The garden is also easily accessible from the spacious kitchen/family room, through bi-fold doors and a separate set of French doors, and there is a handy, adjoining utility room.

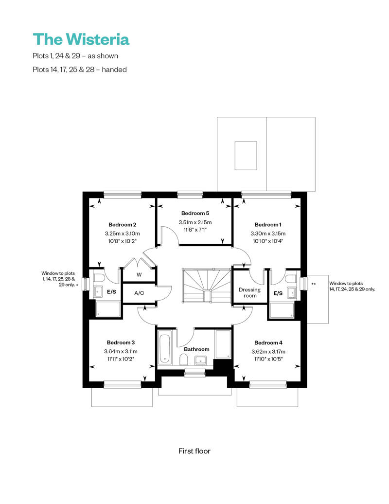
On the first floor, all five bedrooms are of a good size, with Bedroom 1 having the comfort and convenience of an en-suite and a separate dressing room. Bedroom 2 also enjoys the privacy of an en-suite with Porcelanosa tiling to the walls, and has a fitted wardrobe for maximum storage space. There is a separate family bathroom opposite the stairs and generous airing cupboard. This energy-efficient home includes an EV charging point and PV panels as standard.


HBF 5 Star Rated Builder New Consumer Code NHBC NHQC

Oakwood Park, Wimborne

Plot 28 | £890,000


  • 5 Bedrooms

  • 3 Bathrooms

  • 1952 sq ft

  • Wisteria – Canford

Tenure: Freehold

Service Charge: £340.84 P/A

Council Tax: Band Not Available

EPC Rating: A

Property Type: Detached


Make an enquiry

Available with Part Exchange and £20,000 Stamp Duty contribution*

Enlarged view
Images shown are taken from various Cala showhomes or have been generated by computer (for indicative purposes only and are not to be presumed to be entirely accurate.) Showhome images feature fittings, décor, flooring, soft furnishings and landscaping that are not included as standard in a Cala home. Images are used to suggest possible finishes that can be achieved in your home at an additional cost. Please consult a Sales Representative for further details. Some images have been enhanced.

Take a virtual tour of The Wisteria

Why not take a virtual tour of our Wisteria showhome online today? 

 

Showcasing the high end finish, specification and superb layout you can expect from your home here - you'll love what you see.

 

These virtual tours may be taken from previous Cala showhomes and may be different from the same housetype at Oakwood Park. Please speak with your Sales Advisor to find out more about the specification and layout.

Arrow up

Thank you.

A Cala sales representative will be in touch soon to discuss your enquiry.