Plot 232: Crichton - 5 Bedroom Home

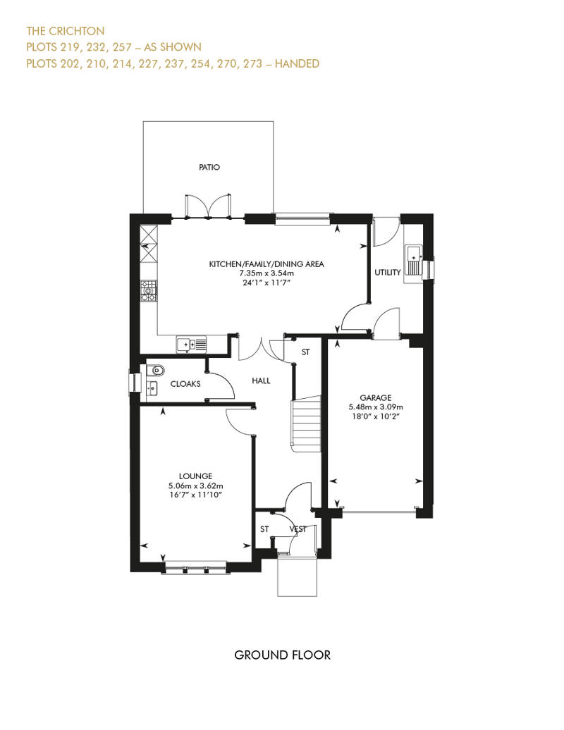
Four double bedrooms, two with en suite, plus a study/fifth bedroom make The Crichton a family home with room to grow. The four larger bedrooms feature fitted wardrobes, and all rooms have access to a luxurious family bathroom. Downstairs, the spacious, L-shaped entrance hall gives access to the formal lounge and a large open plan kitchen and family/dining room. A downstairs cloakroom, ample storage, utility room and integral garage cater for all practicalities.


HBF 5 Star Rated Builder New Consumer Code NHBC NHQC

Craibstone Estate South (Phase 2)

Plot 232 | £439,950


  • 5 Bedrooms

  • 3 Bathrooms

  • 1817 sq ft

  • Crichton

Tenure: Freehold

Service Charge: £323.00 P/A

Council Tax: Band G

EPC Rating: B

Property Type: Detached


Make an enquiry

Step inside the The Crichton...

Flooring
Turf
Crichton at Craibstone Estate does not feature bi-fold doors as shown in the showhome photography. Photography may have been enhanced in post-production and may include upgrades at additional cost. Computer Generated Images may show features fittings, décor, flooring and soft furnishings which are not fitted as standard in a Cala home. CGIs are used to suggest possible finishes that can be achieved in your home at an additional cost. Please consult a Cala representative for further details. Predicted Energy Assessment for properties that are incomplete. Once the property is completed, this rating will be updated and an official Energy Performance Certificate will be created for the property.
Enlarged view
Arrow up

Thank you.

A Cala sales representative will be in touch soon to discuss your enquiry.