Plot 28: Garvie - 5 Bedroom Home

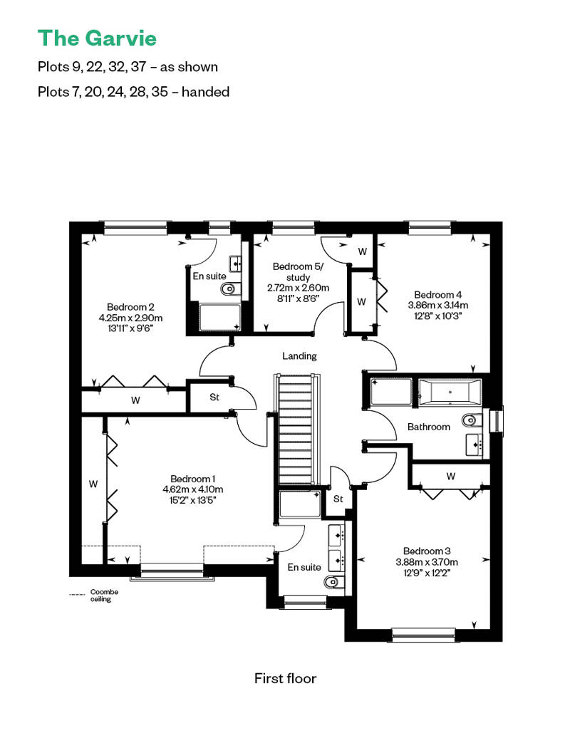
Comprising five spacious bedrooms, two with an en suite and impressive wardrobes, The Garvie has been designed for flexible family luxury.


Featuring double doors, the large lounge is accompanied by an open plan kitchen and dining area with french doors to the patio and rear garden, a separate utility room, cloakroom and integral double garage. All complemented with a family bathroom, plus the fifth bedroom can be used as a private study for home working.


HBF 5 Star Rated Builder New Consumer Code NHBC NHQC

Burnland Meadows, Westhill

Plot 28 | £559,000


  • 5 Bedrooms

  • 3 Bathrooms

  • 2088 sq ft

  • Garvie

Tenure: Freehold

EPC Rating: B

Property Type: Detached


Make an enquiry

This home could be yours with incentives...

Available with Part Exchange* and Mortgage Pay^, this home could save you time, reduce hassle and lower the overall cost of your move.

With our Mortgage Pay service, you could receive up to £12,000. The money is left in your bank account to put towards your mortgage repayments. Or you could even use it to treat yourself to a holiday or for decorating your new home. Find out more here.

Enlarged view

Explore our Virtual Tour

Arrow up

Thank you.

A Cala sales representative will be in touch soon to discuss your enquiry.