Plot 34: Macrae - 5 Bedroom Home

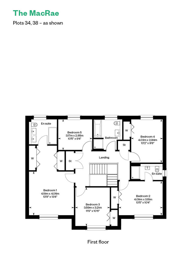
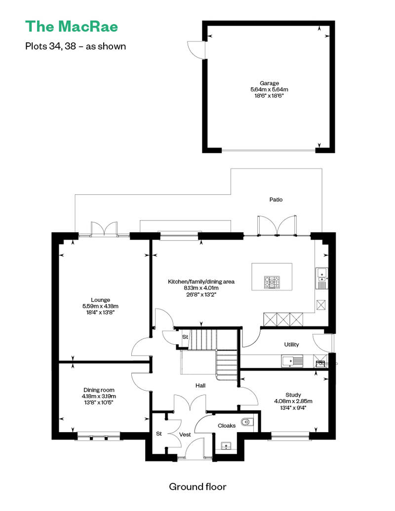
A byword for deluxe detached living, The Macrae welcomes you via a spacious vestibule with cloakroom, before opening into the central hall. Hosting a dinner party? Look no further than the expansive lounge and dining room.

Or for a more informal gathering, the open plan kitchen and family area caters for every comfort. From the galleried landing, a glorious en suite master bedroom features a walk-through dressing area, complemented by four spacious bedrooms and the opulent family bathroom.


HBF 5 Star Rated Builder New Consumer Code NHBC NHQC

Burnland Meadows, Westhill

Plot 34 | £739,000


  • 5 Bedrooms

  • 3 Bathrooms

  • 2470 sq ft

  • Macrae

Tenure: Freehold

Service Charge: £304.08 P/A

Council Tax: Band G

EPC Rating: B

Property Type: Detached


Make an enquiry

Live the showhome dream - this home could be yours...

You’ve admired them. You’ve imagined life in one. Now, that dream can finally be yours.

Set within Cala’s beautiful Burnland Meadows community in Westhill, the Macrae showhome is now available for sale — a truly exceptional five-bedroom detached home complete with a double detached garage.

Every detail has been thoughtfully designed by Eileen Kesson of Envision, blending timeless style with effortless comfort. From the statement lighting and Silestone worktops to the luxurious furnishings and curated décor, this home is ready for you to simply step inside and start living.

This is more than a home — it’s a lifestyle, fully realised and ready to enjoy from day one.

This home could be yours with incentives...

Available with Part Exchange* and Mortgage Pay^, this home could save you time, reduce hassle and lower the overall cost of your move.

With our Mortgage Pay service, you could receive up to £12,000. The money is left in your bank account to put towards your mortgage repayments. Or you could even use it to treat yourself to a holiday or for decorating your new home. Find out more here.

Enlarged view

Step inside The Macrae

Imagine what you could do with this home...
Arrow up

Thank you.

A Cala sales representative will be in touch soon to discuss your enquiry.