Plot 125: Allan – Mid Terrace - 3 Bedroom Home

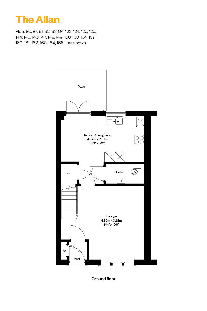
This sophisticated home provides the ideal in flexible family living space. The modern studio-designed kitchen and family/dining area is open plan, enjoying access to the patio and rear garden via French doors, allowing you to extend you living on a sunny day or when friends are round.

Downstairs you also enjoy a separate (yet interconnecting) lounge, downstairs WC, excellent storage and welcoming vestibule, while on the first floor you’ll be greeted by a spacious upper landing, off which find two double bedrooms and a single (perfect as a home office, nursery or hobby room), all enjoying fitted wardrobes. The Allan’s light and airy ambience is complemented with a high specification family bathroom.


HBF 5 Star Rated Builder New Consumer Code NHBC NHQC

West Craigs

Plot 125 | £364,995


  • 3 Bedrooms

  • 1 Bathroom

  • 902 sq ft

  • Allan – Mid Terrace

Tenure: Freehold

Service Charge: £131.74 P/A

Council Tax: Band E

EPC Rating: B

Property Type: Terrace


Make an enquiry

Help to move, built around you

Make our featured home yours

Available to view, contact our sales team to arrange your visit of this 3 bedroom home featuring a private driveway and available with: 

★ 5% deposit paid* (which could equate to a saving of £18,249.75)

Plus

★ Flooring, turf, lights & blinds

If you have a home to sell, why not ask us about our Part Exchange service?

Intrigued? Enquire today.

*for reservation by 27th February 2026. Terms & conditions apply.

Enlarged view
The Allan - Showhome photography
Photography may have been enhanced in post-production and may include upgrades at additional cost. Computer Generated Images may show features fittings, décor, flooring and soft furnishings which are not fitted as standard in a Cala home. CGIs are used to suggest possible finishes that can be achieved in your home at an additional cost. Please consult a Cala representative for further details.

The Allan Showhome – Virtual Tour

The Allan Showhome – Video Tour
Arrow up

Thank you.

A Cala sales representative will be in touch soon to discuss your enquiry.