Plot 172: Moncrief - 5 Bedroom Home

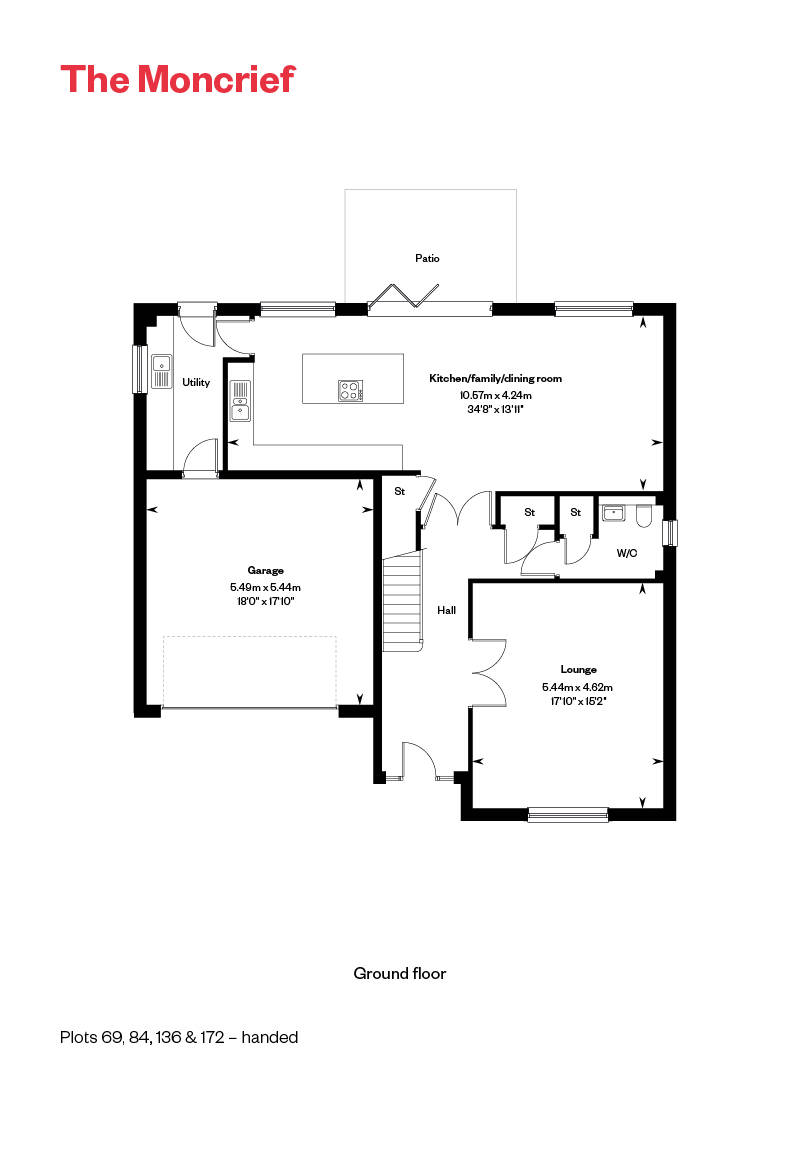
A spacious open plan kitchen/dining and family area to the rear provides an excellent heart for family life in The Moncrief. A large formal lounge and integral double garage complete the ground floor, while upstairs a luxurious, en suite master bedroom is joined by four more bedrooms, two en suites, a family bathroom and separate study.

See what a recent purchaser had to say about their new Cala home:

"Compared to other new build homes, the dimensions are very good and it's very spacious and big. The quality of the home is also very good."


HBF 5 Star Rated Builder New Consumer Code NHBC NHQC

Cornhill Village, Hamilton

Plot 172 | £586,995


  • 5 Bedrooms

  • 4 Bathrooms

  • 2513 sq ft

  • Moncrief

Tenure: Heritable

Service Charge: £53.50 P/A

EPC Rating: B

Property Type: Detached


Make an enquiry

Your dream move just got easier

Enjoy 50% LBTT fees covered by Cala, saving you over £15,000, plus a complete flooring and carpets package included throughout at no extra cost.

Enlarged view
Take a look at our Moncrief showhome at Killearn... book to view and discover the Cala difference
Arrow up

Thank you.

A Cala sales representative will be in touch soon to discuss your enquiry.