Plot 68: Fir - 3 Bedroom Home

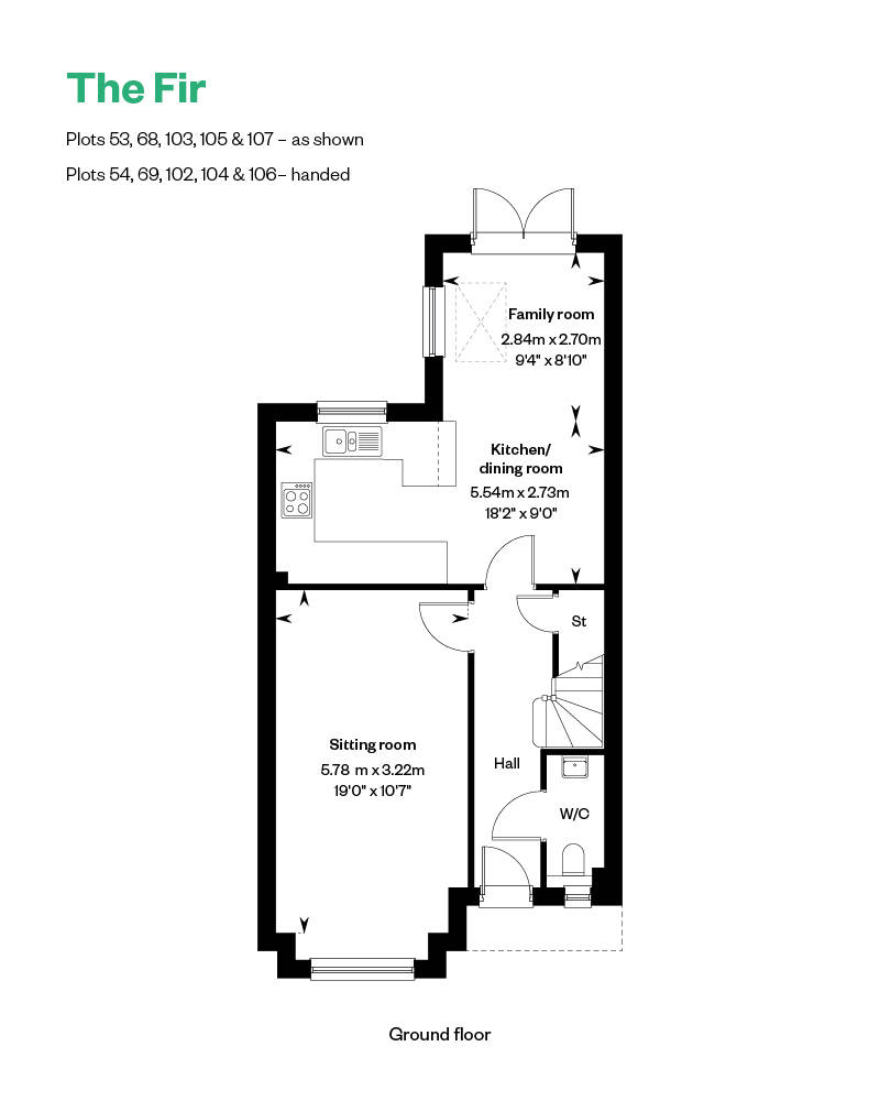
Attractive linear design means that the living spaces in The Fir flow perfectly.  The hallway opens onto a spacious front sitting room. The open plan kitchen diner is fully fitted with high quality appliances, which extends to a light and airy family room opening out to the rear garden. Ideal for eating and entertaining together, for play and for relaxation. There’s also handy storage and a w/c on this floor.

Upstairs, bedroom one, to the front, is en suite with fitted wardrobes, and two more bedrooms and a bathroom complete a superb family home.


HBF 5 Star Rated Builder New Consumer Code NHBC NHQC

Cala at Buckler's Park - The Heights, Crowthorne

Plot 68 | £570,000


  • 3 Bedrooms

  • 2 Bathrooms

  • 1090 sq ft

  • Fir

Tenure: Freehold

Service Charge: £220.69 P/A

Council Tax: Band Not Available

EPC Rating: A

Property Type: Semi Detached


Make an enquiry
Enlarged view
Images shown are taken from various Cala showhomes or have been generated by computer (for indicative purposes only and are not to be presumed to be entirely accurate.) Showhome images feature fittings, décor, flooring, soft furnishings and landscaping that are not included as standard in a Cala home. Images are used to suggest possible finishes that can be achieved in your home at an additional cost. Please consult a Sales Representative for further details. Some images have been enhanced.

Take a virtual tour

This virtual tour may be taken from previous Cala showhomes and may be different from the same housetype at Cala at Buckler's Park. Please speak with your Sales Advisor to find out more about the specification and layout.

Arrow up

Thank you.

A Cala sales representative will be in touch soon to discuss your enquiry.