Plot 36: Macrae Studio - 5 Bedroom Home

Plot 36 at a glance:
• Largest home style on the development • Exceptionally spacious rear garden • Open outlooks to front • 5 bedrooms + study • Detached garage with upper living space and shower room • Generous driveway


HBF 5 Star Rated Builder New Consumer Code NHBC NHQC

Ballagan Woods, Killearn

Plot 36 | £799,000


  • 5 Bedrooms

  • 5 Bathrooms

  • 3015 sq ft

  • Macrae Studio

Tenure: Heritable

Service Charge: £480.00 P/A

EPC Rating: B

Property Type: Detached


Make an enquiry

Settle in right away...

This home is available with the following incentive package, worth over £40,000:

✓ Flooring and carpets included throughout
✓ Garden ready with patio and turf
✓ 50% LBTT fees covered by Cala

Enlarged view

Take an online tour

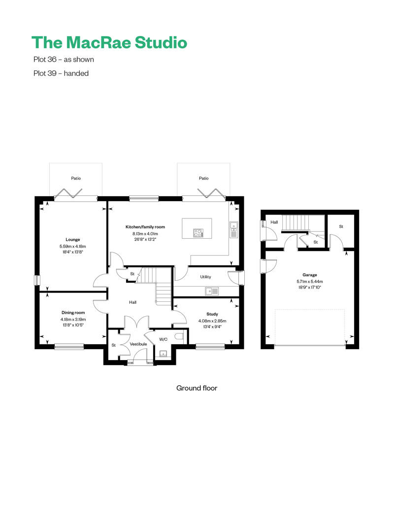
The thoughtfully designed MacRae Studio combines deluxe detached living with the added benefit of a detached double garage with two storeys.

On the ground floor, a vestibule with storage and a cloakroom is the perfect place to greet guests. From here, and accessed via a spacious hallway, is a study, dining room, formal lounge and an open plan kitchen and family/dining area. French doors from the lounge and bi-folding doors from the kitchen further extend the living space onto the patio area and rear garden.

Upstairs is a luxurious bathroom with a separate shower enclosure, and five elegant bedrooms. The impressive master bedroom features an en suite shower room and spacious separate dressing area. Two of the remaining four bedrooms benefit from fitted wardrobes, and one has an en suite shower room.

 

Take a tour below:

Macrae Studio: Images
Images include photography from previous show homes as well as CGI's (computer generated images), and are used for illustrative purposes only. May differ in specification, finishes, window configuration, space and surroundings. Please speak to a sales consultant for more information
Arrow up

Thank you.

A Cala sales representative will be in touch soon to discuss your enquiry.